1/4
Office

Office To Let Eastbourne

PROPERTY ID: 139696

PROPERTY TYPE

Office

STATUS

Available

SIZE

48-157 sq.ft

Key Features

Serviced offices with some parking
Flexible and inclusive terms
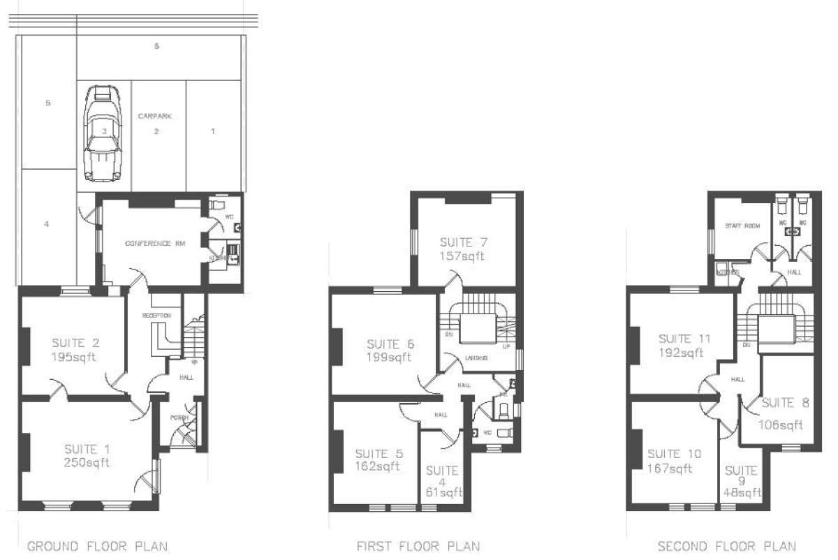
11 self-contained suites
Ranging from 48 sq ft to 250 sq ft.
Central town centre location
Suite 7: 157 sq ft on first floor for £380 pcm

Property Details

Gildredge Road is the main professional area of the town, where there are a number of Accountants, Solicitors, Surveyors, Estate Agents, Financial Advisors and Insurance Brokers. Eastbourne railway station is approximately 200 yards to the north with the pedestrianised shopping areas of Terminus Road and the Arndale Centre also close by. The property is on the western side of Gildredge Road, between the junctions of South Street and Hyde Road.

Serviced Offices With Parking To Let On Flexible And Inclusive Terms With 11 Self-contained Suites Ranging From 48 Sq Ft To 250 Sq Ft.

See Brochure For Full Information With Floor Plan.

Availability:
Suite 7: 157 Sq Ft On First Floor For £380 Pcm

Gildredge Road Is The Main Professional Area Of The Town, Where There Are A Number Of Accountants, Solicitors, Surveyors, Estate Agents, Financial Advisors And Insurance Brokers. Eastbourne Railway Station Is Approximately 200 Yards To The North With The Pedestrianised Shopping Areas Of Terminus Road And The Arndale Centre Also Close By. The Property Is On The Western Side Of Gildredge Road, Between The Junctions Of South Street And Hyde Road.

About the Agent

Stiles Harold Williams Partnership LLP

See Agent's Other Properties

Office Unit

Starting From £4,560 / pa
£380 / month

Compass House,45 Gildredge Road, Eastbourne, BN21 4RU
Office - Available
48-157 sq ft
4-15 sqm
Show phone number

Enquiry Form

Boxpod will only use your details to send an enquiry to the advertiser and prompt a response. By clicking the Send Enquiry button, you agree to Boxpod's Privacy Policy Please wait for a response. It may take several seconds.

Similar to this property

To Let
£1752 / month

Eastbourne, BN21 4QU

Office

To Let
£260 / month

Eastbourne, BN22 8UY

Office

To Let
£500 / month

Eastbourne, BN23 6JH

Office

To Let
£667 / month

Eastbourne, BN23 5UZ

Office

To Let
£5417 / month

Pevensey, BN24 5NP

Office

To Let
£1250 / month

Hailsham, BN27 1BG

Office

To Let
£480 / month

Bexhill On Sea, TN40 1JA

Office

To Let
POA

Newhaven, BN9 0DH

Office

To Let
POA

Newhaven, BN9 0DH

Office

To Buy
POA

Newhaven, BN9 9PW

Office

To Let
POA

Bexhill on Sea, TN39 5BF

Office

To Let
Starting From £967 / month

Bexhill On Sea, TN39 5ES

Office

To Let
£2392 / month

Heathfield, TN21 0GE

Office

To Let
£1500 / month

St. Leonards-on-Sea, TN38 0DX

Office

To Let
£3292 / month

St. Leonards-on-Sea, TN38 0DX

Office

To Let
£1417 / month

BATTLE, TN33 0AQ

Office

To Let
£473 / month

Lewes, BN7 2RG

Office

To Let
£645 / month

Lewes, BN7 2RG

Office

To Let
POA

Lewes, BN7 2RG

Office

To Let
£525 / month

Lewes, BN7 2RG

Office

To Let
£1167 / month

St. Leonards-on-Sea, TN38 9BG

Office

To Let
£1625 / month

St. Leonards-on-Sea, TN37 6PH

Office

To Let
Starting From £321 / month

Hastings, TN34 1HL

Office

To Let
Starting From £1042 / month

Hastings, TN34 1HL

Office

To Let
Starting From £917 / month

Hastings, TN34 1EA

Office

To Let
Starting From £2925 / month

Hastings, TN34 1EA

Office

To Let
£792 / month

Hastings, TN34 1BE

Office

To Let
£1458 / month

Hastings, TN34 1NG

Office

To Let
£1333 / month

Hastings, TN34 1SS

Office

To Let
£1750 / month

Hastings, TN34 3JE

Office

To Buy
£650000 Freehold

Hastings, TN34 3NW

Office

To Let
£200 / month

Salehurst, TN32 5NG

Office

To Let
£524 / month

Brighton, BN2 0DF

Office

To Let
£14098 / month

Brighton, BN2 4GL

Office

To Let
£10954 / month

Brighton, BN2 1TL

Office

To Let
£4795 / month

Brighton, BN2 1TL

Office

To Let
£5896 / month

Brighton, BN2 1TL

Office

To Let
POA

Brighton, BN1 4AA

Office

To Let
£7140 / month

Brighton, BN1 1NW

Office

To Let
POA

Brighton, BN1 4ST

Office

To Let
Starting From £5208 / month

Brighton, BN1 1UD

Office

To Let
£7083 / month

Brighton, BN1 1HL

Office

To Let
£11417 / month

Brighton, BN1 1EB

Office

To Let
£3211 / month

Brighton, BN1 1EB

Office

To Let
£10098 / month

Brighton, BN1 1EB

Office

To Let
£3348 / month

Brighton, BN1 1EB

Office

To Let
POA

Brighton, BN1 4HB

Office

To Let
£3000 / month

Brighton, BN1 1AE

Office

To Let
POA

Brighton, BN88 1NH

Office

To Let
£8599 / month

Brighton, BN1 4FY

Office

To Let
POA

Brighton, BN1 4FY

Office

To Let
£19376 / month

Brighton, BN1 4FY

Office

To Let
POA

Brighton, BN1 4FY

Office

To Let
POA

Brighton, BN88 1NH

Office

To Let
POA

Brighton, BN1 4DW

Office

To Let
POA

Brighton, BN88 1NH

Office

To Let
£11306 / month

Brighton, BN1 1RN

Office

To Let
POA

Brighton, BN1 1RN

Office

To Let
POA

Brighton, BN1 4FR

Office

To Let
Starting From £273 / month

Brighton, BN1 4DU

Office

To Let
Starting From £10744 / month

Brighton, BN1 4HB

Office

To Let
Starting From £263 / month

Brighton, BN1 4DU

Office

To Let
Starting From £688 / month

Brighton, BN1 1YR

Office

To Let
Starting From £10483 / month

Brighton, BN1 1AL

Office

To Let
POA

Brighton, BN1 1AL

Office

To Let
Starting From £11736 / month

Brighton, BN1 4DJ

Office

To Let
Starting From £5225 / month

Brighton, BN1 3XJ

Office

To Let
£4033 / month

Brighton, BN1 3XE

Office

To Let
POA

Brighton, BN1 3XE

Office

To Let
POA

Brighton, BN1 3XE

Office

To Let
Starting From £3260 / month

Brighton, BN1 3XF

Office

To Let
Starting From £609 / month

Brighton, BN1 3XF

Office

To Let
Starting From £2918 / month

Brighton, BN1 3XG

Office

To Let
£1667 / month

Brighton, BN1 3WB

Office

To Let
Starting From £7728 / month

Brighton, BN1 3XB

Office

To Let
£5321 / month

Brighton, BN1 3XB

Office

To Let
POA

Brighton, BN1 3XB

Office

To Let
POA

Brighton, BN1 8AF

Office

To Let
Starting From £1277 / month

Brighton, BN1 2RE

Office

To Let
POA

Brighton, BN1 2RE

Office

To Let
POA

Brighton, BN1 2BB

Office

To Let
Starting From

Brighton, BN1 3TS

Office

To Let
POA

Brighton, BN1 6AT

Office

To Let
Starting From £3375 / month

Brighton, BN1 6AG

Office

To Let
Starting From £1458 / month

Hove, BN3 2FA

Office

To Let
£3125 / month

Hove, BN3 3DD

Office

To Let
£6389 / month

Hove, BN3 6HA

Office

To Let
£9238 / month

Hove, BN3 3LN

Office

To Let
POA

Hove, BN3 7AN

Office

To Let
POA

Hove, BN3 7PZ

Office

To Let
POA

Crowborough, TN6 1DH

Office

To Let
POA

Crowborough, TN6 1DH

Office

To Let
Starting From £671 / month

Hove, BN3 7ES

Office

To Let
POA

Hove, BN3 7GS

Office

To Let
£3000 / month

Portslade, BN3 4EF

Office

To Let
£9197 / month

Brighton, BN41 1AE

Office

To Let
£2426 / month

2nd Floor, RH15 9AS

Office

To Let
POA

Burgess Hill, RH15 9QU

Office

To Let
POA

Burgess Hill, RH15 9QU

Office

To Let
£1233 / month

Burgess Hill, RH15 9LH

Office